Villa Punta Dura
Preview only — see all hotel photos
See all 31 photos
Mostrar hotel no mapa
Villa Punta Dura
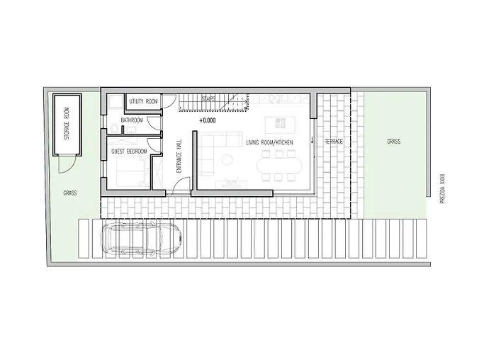
Localizada 3.4 km da Kastelina Castle, a Villa Punta Dura Vir dispõe de piscina de mergulho, de piscina de mergulho e banheira quente, garantindo uma estadia relaxante. Com acesso a terraço, esta vila de Vir está localizada a cerca de 25 minutes a pé da Plaza Radovanjica.
Os hóspedes encontrarão a Plaza Jadro 2.8 km desta pousada à beira-mar.
As casas de banho também incluem casa de banho separada e chuveiro. Além disso, secador de cabelo, roupões e toalhas são fornecidos para seu conforto.
A acomodação de Vir dispõe de cozinha totalmente equipada, bem como de zona de refeições para conveniência dos hóspedes. Há também chaleira elétrica, refrigerador e utensílios de cozinha para preparar a sua própria refeição. Servindo pratos da cozinha Europese, Bistro Maestral está a cerca de 5 minutos de distância a pé. Localizada logo ao virar da esquina da Villa Punta Dura, a estação de autocarros Vir 1 - Prezida proporciona alternativas de transporte nas proximidades.
Comodidades
Principais características
- Wi-Fi
- Praia privada
- Spa e relaxamento
- Ar Condicionado
- Animais
Instalações
- Proibido fumar em todas as áreas
- Wi-Fi
- Estacionamento
- Animais Admitidos
- Estação de recarga para veículos elétricos
- Praia
- Jardim
- Jacuzzi
- Ar Condicionado
- Terraço
Política
Mapa
Atrações locais
Aeroportos
- Aeroporto em Zadar (35 km)
Comentários
100% de comentários verificados